Architektur beginnt mit einer Idee.
Wir liefern sie zum Festpreis!
Sie haben ein Grundstück oder erste Vorstellungen – aber noch keinen konkreten Plan? Oder Sie möchten mit einem Generalunternehmer bauen, aber vorher eine unabhängige und individuelle Planung in der Hand haben? Dann ist unsere Entwurfsstudie zum Festpreis der ideale Einstieg in Ihr Bauvorhaben.
Wir planen für Sie ein individuell zugeschnittenes Hauskonzept – mit klarer architektonischer Idee und durchdachter Raumstruktur. Ohne langwierigen Vertrag, ohne frühzeitige Bindung – aber mit dem, was wirklich zählt: einer tragfähigen Grundlage für Ihre nächsten Schritte.
So gewinnen Sie frühzeitig Klarheit über Proportionen, Nutzungsideen und architektonische Wirkung – eine fundierte Basis für Ihre Entscheidung, wie es weitergehen soll.
Individuelle Planung. Klare Kosten. Einfach loslegen.
Die Idee beginnt hier.
01 Ihre Wünsche
Sie erhalten von uns eine kurze Bedarfsanalyse – einfach und klar aufgebaut. Hier können Sie Ihre Anforderungen an das Haus erläutern: z. B. Grundstücksangaben, gewünschte Hausgröße, Raumaufteilung, Funktionen und Besonderheiten. Diese Angaben bilden die Grundlage für alles Weitere.
02 Gemeinsames Gespräch
In einem Gespräch – telefonisch, online oder bei uns im Büro – besprechen wir Ihre Angaben, ordnen Ihre Wünsche ein und definieren Ihre architektonischen Schwerpunkte. Dabei sprechen wir über Nutzungsideen, Raumzusammenhänge, Ausstattung und Potenziale.
03 Unsere Studie
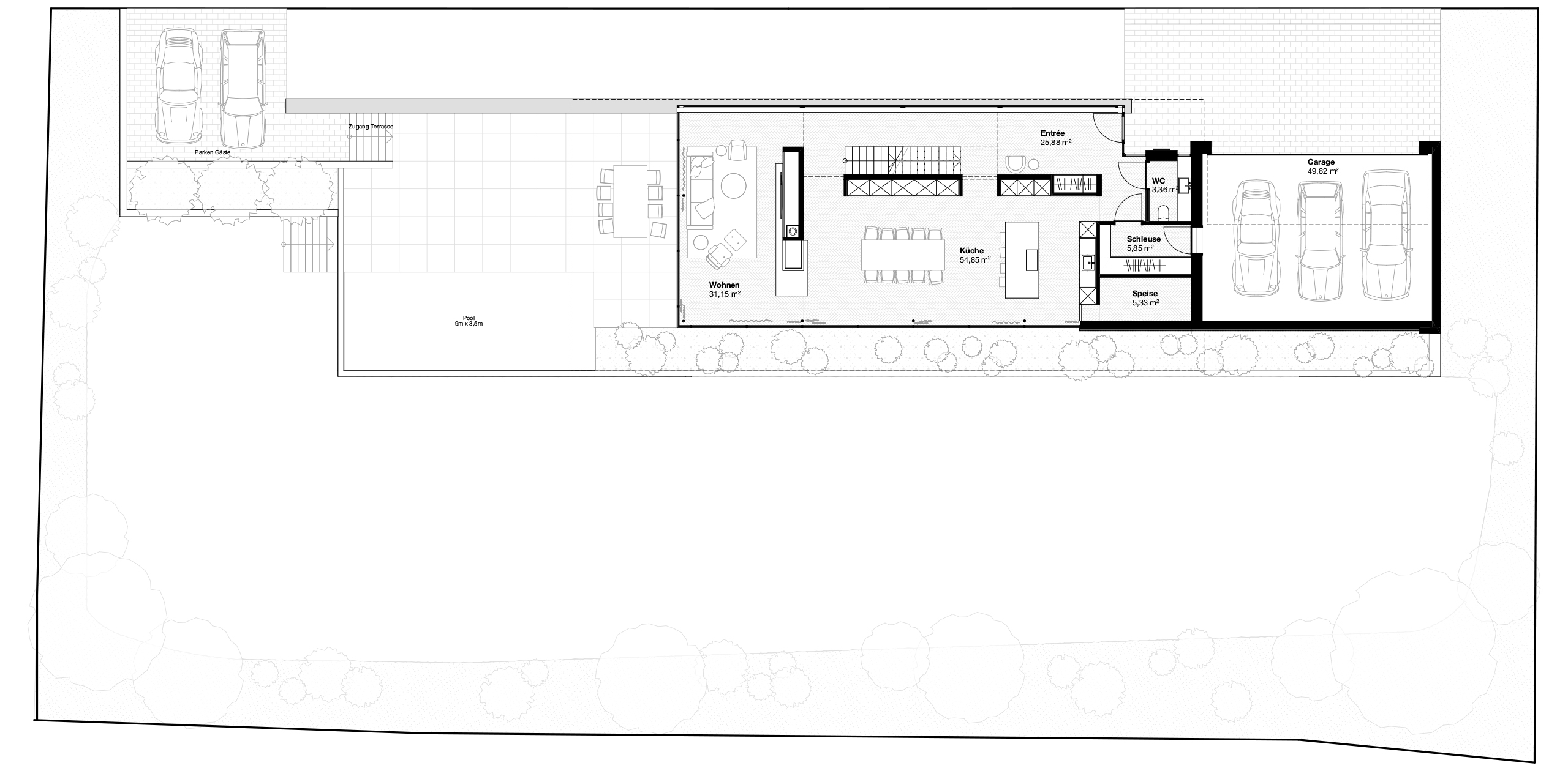
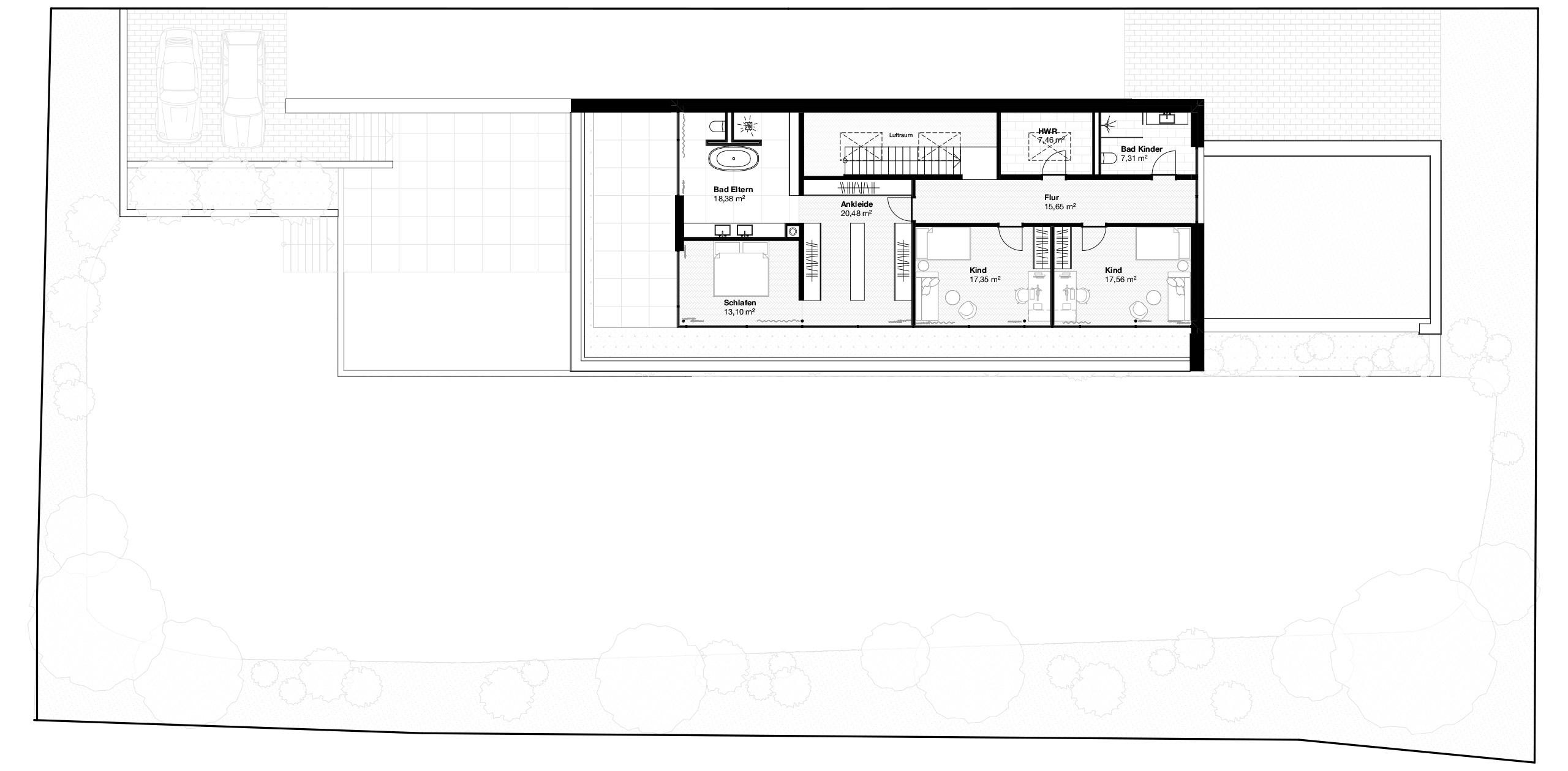
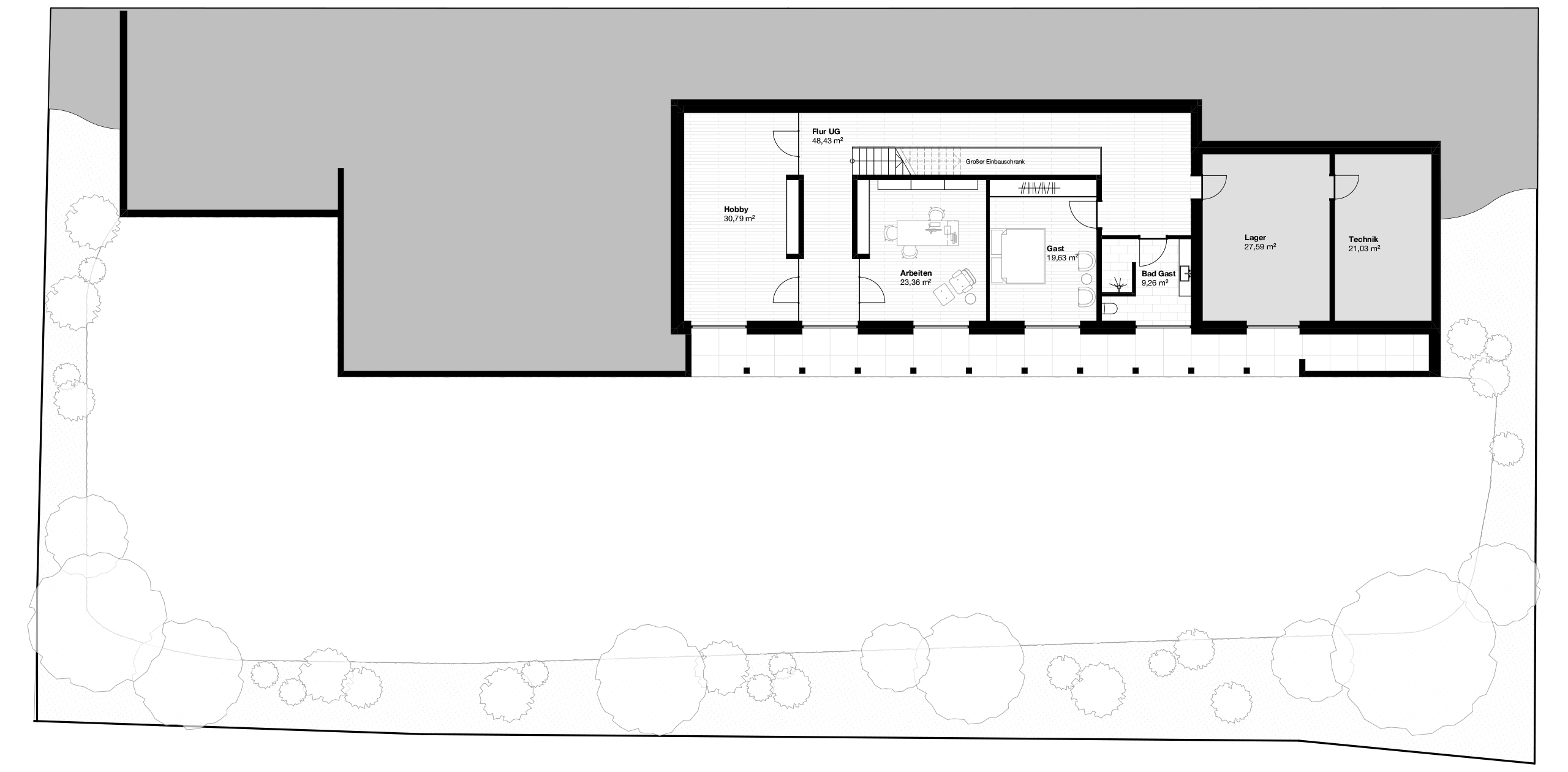
Darauf aufbauend entwickeln wir die Entwurfsstudie – funktional durchdacht, gestalterisch stimmig und individuell auf Ihre Anforderungen abgestimmt. Sie erhalten Grundrisse, die Ihnen ein erstes Gespür für Raumgefühl, Proportionen und architektonische Wirkung vermitteln.
Leistungsumfang
16€
pro m² Netto-Grundfläche (NGF)
- Klärung Ihrer Anforderungen anhand einer Bedarfsanalyse
-
30–60 Minuten persönliches Beratungsgespräch (online, telefonisch oder bei uns im Büro)
-
Architektonische Einschätzung zu Raumbedarf, Organisation und Gestalt
-
Individuell entwickelte Entwurfsstudie mit Grundrissdarstellung (PDF)
-
Berücksichtigung Ihrer Wünsche – ohne baurechtliche Prüfung
Optionale Leistungen
3D Modell
Darstellung des Entwurfs in einem begehbaren 3D-Modell (z. B. zur Ansicht am Tablet oder PC)
+4€/m²
visualisierungen
Vier hochwertige Visualisierungen zur besseren Vorstellung der späteren Architektur. (Voraussetzung: 3D Modell)
+4€/m²
Individuelle Bearbeitungen
- Prüfung Baurecht
- Zusätzliche Visualisierungen
- Farb- und Materialkonzept
- Sonnenstudien
nach Aufwand
Nicht enthaltene Leistungen
Unsere Entwurfsstudie bietet Ihnen einen fundierten Einstieg in die Planung – ohne Verpflichtung zur vollständigen Architektenbeauftragung. Einige Leistungen sind in diesem Rahmen daher nicht vorgesehen, wie zum Beispiel:
- Keine umfassende Architektenbeauftragung
- Keine Prüfung oder Bewertung von Grundstück, Nachbarschaft oder Bebauungsplan
- Keine baurechtliche Prüfung und keine Genehmigungsfähigkeit
- Keine statische oder technische Planung
- Keine Kostenschätzung oder Mengenberechnung
- Keine Mitwirkung bei Förderanträgen oder Finanzierungsunterlagen
Vorbereitende Informationen
Für eine zielführende Entwurfsstudie sind einige Informationen und Unterlagen hilfreich. Folgende Punkte sollten – soweit möglich – vorliegen oder vorab geklärt werden:
Grundstücksunterlagen:
- Lageplan des Grundstücks (digital oder analog)
- Höhenmodell oder Geländeschnitte – insbesondere bei Hanglagen oder starkem Gefälle
- Fotos vom Grundstück (insbesondere bei Gefälle, Baumbestand oder angrenzender Bebauung)
Informationen zur planungsrechtlichen Situation: (recherchierbar über das zuständige Bauamt oder Geoportale)
- Baufenster bzw. überbaubare Flächen
- Zulässige Geschosszahl, Gebäudehöhe und Dachformen
- Abstandsflächen und örtliche Gestaltungsvorgaben
Haben wir Ihr Interesse geweckt?
Wollen SIe mehr Referenzen sehen?



